Apenas pré-visualização - ver todas as fotografias do hotel
Ver todas as fotos de 32
Mostrar hotel no mapa
Le Gemini
O Le Gemini Apartamento Sainte-Maxime está localizado a uma distância de aproximadamente 10 minutos a pé de Citadelle de Saint-Tropez e 3.1 km de Clube de Golfe Sainte-Maxime.
Saint Tropez fica 4 km deste apartamento. Pont du Préconil está a alguns passos do apartamento.
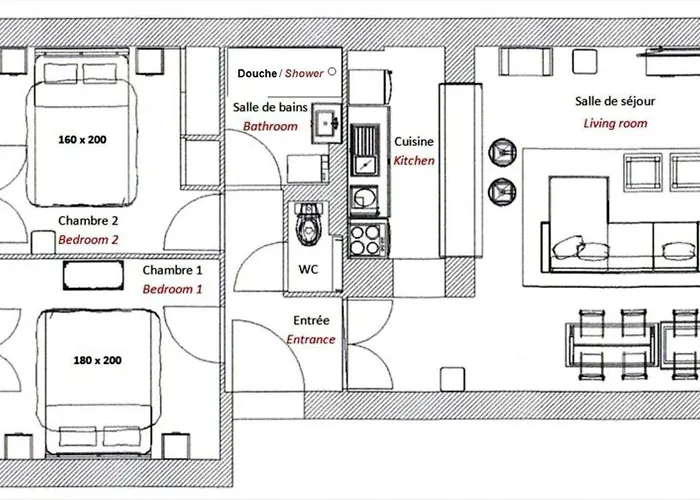
O Le Gemini Apartamento oferece aos hóspedes varanda, bem como confortos modernos como controle de temperatura. No alojamento, casa de banho separada e chuveiro são fornecidos para melhorar o seu conforto. Além disso, encontrará secador de cabelo, lençóis de banho e toalhas.
Para sua conveniência e conforto, o apartamento está equipado com refrigerador, forno e artigos de vidro. A estação de comboios Louis Blanc está a cerca de 5 minutos de distância a pé.
Comodidades
Principais características
- Wi-Fi
Instalações
- Wi-Fi
- Chaleira
- Utensílios de Cozinha
- Facilidades de chá e café
- Mesa de jantar
- Serviço de Engomadoria
- Máquina de Lavar Roupa
- TV LCD
- Piso de parquete
Política
Mapa
Atrações locais
Aeroportos
- Aeroporto em Toulon (55 km)