Preview only — see all hotel photos
See all 32 photos
Show hotel on map
Le Gemini
Le Gemini Apartment Sainte-Maxime provides easy access to various city attractions, such as the Preconil Bridge, situated only a 5-minute walk away.
Sainte-Maxime Golf Course is 2.8 km from the apartment and the Rondini is located 4.4 km away. Guests will easily find the Port of Sainte-Maxime, which is within a few blocks of this apartment. Le Gemini Apartment is about 10 minutes by car from the Plage de la Nartelle Beach.
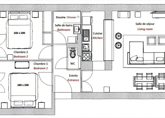
This apartment includes a balcony with air conditioning for utmost comfort. For added convenience, a walk-in shower and a separate toilet are available at the property. You'll also come across a hairdryer and towels.
Le Gemini Apartment is equipped with self-catering facilities like a fridge, an oven, and glassware, giving guests the independence to prepare their own meals. The accommodation is in close proximity to Louis Blanc bus station.
Amenities
Main Features
- Wi-Fi
Facilities
- Wi-Fi
- Electric kettle
- Cookware/ Kitchen utensils
- Tea and coffee facilities
- Dining table
- Ironing facilities
- Washing machine
- Flat-screen TV
- Parquet floor
Policy
Map
Local Attractions
Airports
- Hyeres (55 km)