Kun forhåndsvisning - se alle hotelbilleder
Se alle 32-fotos
Vis hotel på kort
Le Gemini
Beliggende 5 minutters kørsel til Nartelle Strand, denne strand- A 50M De La Plage Et Du Casino Lejlighed ferielejlighed har et udstyret køkken for dem, som ønsker selvforplejning. Gæsterne kan også besøge Citadelle de Saint-Tropez inden for 10 minutters kørsel.
Forskellige spisemuligheder, herunder La Petite Dérive og Restaurant Fred kan nås inden for 250 meter. Det er inden for rækkevidde af Pont du Préconil og en 15-minutters kørsel fra Église Notre-Dame-de-l'Assomption de Saint-Tropez.
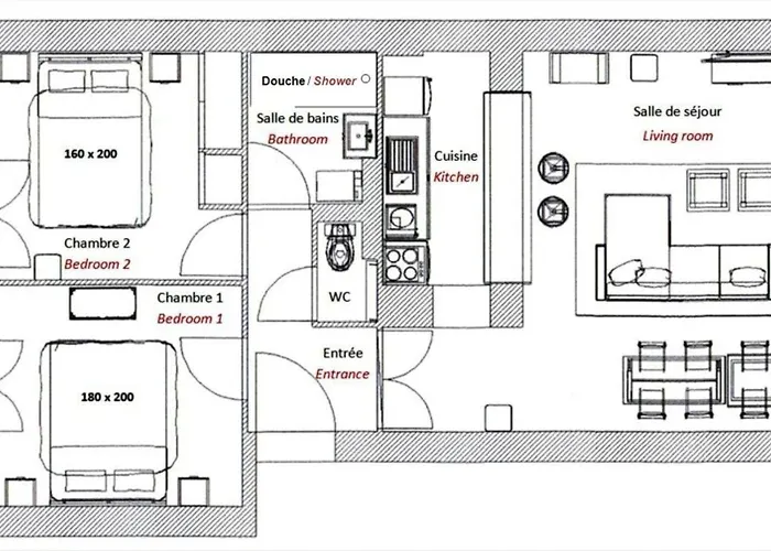
Værelserne har kaffe- og tefaciliteter, et fladskærms TV med satellitkanaler, tv med mange kanaler samt en terrasse med udsigt over havet. Denne indkvartering har også 1 badeværelser. Denne ferielejlighed indeholder 1 soveværelser. Separat toilet og en bruser er til din rådighed i denne strand- ferielejlighed.
Louis Blanc busstation ligger 5 minutters gang derfra.
Faciliteter
Hovedfunktioner
- WiFi
Faciliteter
- Wi-Fi
- Kedel
- Køkkengrej/ Køkkenredskaber
- Te- og kaffefaciliteter
- Spisebord
- Strygeservice
- Vaskemaskine
- Fladskærms TV
- Parketgulv
Politik
Kort
Lokale seværdigheder
Lufthavne
- Toulon Lufthavn (55 km)